Göbelstraße 5 - Chemnitz
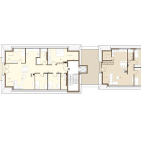
Im beliebten Chemnitzer Stadtteil Schönau wird in der Göbelstraße 5 ein zuvor als Ärztehaus genutztes Gebäudeensemble aufwendig saniert und in ein modernes Mehrfamilienhaus umgewandelt. Die insgesamt zehn Eigentumswohnungen bewegen sich zwischen einer Größe von 67 bis 185 Quadratmetern. Das 2.290 Quadratmeter fassende Grundstück beheimatete in den 1930er-Jahren eine Fabrikantenvilla. Sie kennzeichnet eine massive Bauweise, die im Stil der Reformarchitektur gehalten ist. In den 1950er-Jahren wurde auf der Gartenseite ein zweites Gebäude im identischen Baustil ergänzt. Die beiden Häuser verbindet ein gemeinsames Treppenhaus.
Insgesamt 10 Pkw-Stellplätze sind angelegt, wovon fünf über eine Teilüberdachung verfügen. Für Fahrräder werden sowohl im Außenbereich, als auch im Untergeschoss entsprechende Abstellmöglichkeiten bereitgehalten. Der Gemeinschaftsgarten wartet mit einer Spielfläche für Kleinkinder auf. Das Gebäudeensemble der Göbelstraße 5 kann über zwei Eingänge betreten werden. Auf der Nordseite befindet sich der großzügige Haupteingang, der über einige Stufen auf die Ebene des Erdgeschosses führt. Vom Bereich der Pkw-Stellplätze ist der südliche Zugang zu erreichen. Über ihn gelangen die Bewohner auf das Podest der Haupttreppe zwischen Untergeschoss und Erdgeschoss. An beiden Eingängen ist eine Audio-Video-Wechselsprecheinrichtung integriert.
Alle Wohneinheiten besitzen entweder einen Balkon, eine Terrasse oder einen Gartenanteil. Charakteristisch sind die großzügig gehaltenen Wohnbereiche, zu denen zumeist auch ein offenes Küchenkonzept gehört. Eine Fußbodenheizung ist in allen Räumen installiert. Zusätzlich erhalten die Bäder einen Handtuchheizkörper. Die Sanitär- sowie die Elektroausstattung stammen von namhaften Herstellern und bewegen sich auf einem gehobenen Niveau. In den Schlafzimmern, Kinderzimmern sowie den Fluren sind Rauchmelder angebracht.
Jede der Wohnungen lässt sich komfortabel über einen Aufzug erreichen, der bis ins Kellergeschoss führt. Dort befindet sich zu jeder der Einheiten ein entsprechendes Abteil, das mit einer Leuchte und einer Steckdose bedacht ist. Außerdem gibt es einen Waschmaschinen- und einen Heizungsraum.
Das Objekt darf als typisch für Schönau verstanden werden. Der im Westen gelegene Stadtteil bildet den Übergang zwischen dem Zentrum und dem suburbanen Rand von Chemnitz. Die Bevölkerungsdichte ist als gering bis mittel einzustufen. Villen prägen das Erscheinungsbild maßgeblich. In unmittelbarer Umgebung der Göbelstraße sind Ärzte, Apotheken, eine Oberschule, ein Sportplatz sowie mehrere Restaurants vorhanden. Supermärkte lassen sich nach etwa 15 Gehminuten erreichen. Die Altstadt ist circa 4,5 Kilometer entfernt.
Das Projekt entsteht als KfW Effizienzhaus 115, welches für die energetische Modernisierung von Bestandsimmobilien gilt. Käufer profitieren dabei von hohen Fördermitteln und Darlehen. Diese werden voraussichtlich bis zur Beurkundung am 01. Juli 2021 gewährt. Konkret bedeutet das, dass über das dazugehörige KfW-Programm 430 Zuschüsse in Höhe von 25 Prozent und maximal 30.000 Euro je Wohneinheit in Aussicht stehen. Zudem lassen sich zinsgünstige Darlehen mit einem Effektivzins von 0,75 Prozent mit einem Tilgungszuschuss in Höhe von 25 Prozent – ebenfalls maximal 30.000 Euro je Wohnheinheit – über das Programm 151 der KfW beanspruchen.
